Обяви За нас Контакти
Продава 3-СТАЕН
град София, Овча купел 2
203 076 €
397 182.13 лв.

(2 011 €, 3 933.17 лв./m2)
Цената е с включено ДДС
История на цената
Публикувана в 14:20 на 10 ноември, 2025 год.
Обявата е посетена 11 пъти.
Площ:
101 m2
Строителство:
Тухла, Ще бъде въведен в експлоатация 2025 г.

Описание на имота:


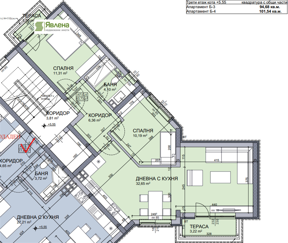
Пред АКТ 14! Безупречен строител! Явлена Главен офис представя жилищен проект в гр. София,в ж.к. Овча купел 2 до метростанция. Проектът се изпълнява от фирма с над 30 години опит в проектирането и строителството, с проектирани и изпълнени множество жилищни сгради и обекти в цялата страна. Комплекс, включващ 2 сгради, сграда А и сграда Б, разположени в общ двор, който ще бъде облагороден с детски площадки и места за отдих. Сградите ще бъдат с изчистени и с модерна визия. Предлагаме двустайни и тристайни жилища, както ателиета, магазини, гаражи и паркоместа. Всички апартаменти имат функционално разпределение с възможност за преустройство, което да осигури уют на Вашето семейство. Жилище за продажба на етаж 3 : Площ 101кв.м. / чиста застроена площ 84кв.м. Разпределение: Голяма дневна, 2 - спални, баня с тоалетна, голямо антре с коридор и 2 хубави тераси с прекрасни гледки. Етап на строителство в строеж преди акт 14! ( ВЪЗМОЖНОСТ ЗА ПРЕКРАСЕН ПРЕУСТОРЕН ТРИСТАЕН) Перфектна локация както за живеене, така и за инвестиция, непосредствено до метро, бъдещ парк, болница, детска градина, спирки и вериги хранителни магазини. Сградата се предвижда да бъде завършена в началото на 2027 година. Гъвкави схеми на плащане, в зависимост от начина на финансиране на сделката. Агенцията предлага безплатна консултация с финансов специалист по отношение на ипотечно кредитирена. Оказваме съдействие за интериорни проекти и довършителни работи. За повече информация се свържете с отговорният брокер по офертата, Лъчезар Огнянов /yavlenaCOM-158757/
Виж всички обяви в yavlena.bazar.bg или тук
Особености
Тухла
За контакт:
0892503451
Брокер:
Яна Велкова
02476000
Офис: Фронт офис - луксозни имоти
Още оферти от брокера: Продава | Дава под наем | Купува | Наема
Агенция:
ЯВЛЕНА ЦЕНТРАЛЕН ОФИС
028105000
ЯВЛЕНА ЦЕНТРАЛЕН ОФИС logo
Медал за прослужено време
В imot.bg от 2002 г.
yavlena.imot.bg
Адрес:
област София, гр. София, ул. Ген. Йосиф Гурко 76А
http://www.yavlena.com
ИЗПРАТИ ЗАПИТВАНЕ
ИЗПРАТИ ЗАПИТВАНЕТО

Продава 3-СТАЕН
град София, Овча купел 2
Обява: 1c176277721793138

203 076 €
397 182.13 лв.
История на цената
(2 011 €, 3 933.17 лв./m2)

Цената е с включено ДДС
ЗАПАЗИ ОБЯВАТА

Местоположение: град София, Овча купел 2

Допълнителни данни за имотите в района и сравнение с други райони: Търсене в АРХИВ 2013 - 2025 г.











Добави/редактирай
вид имот и район
*Средните цени са определени чрез медиана стойност.