Обяви За нас Контакти
Продава 3-СТАЕН
град София, Гео Милев
295 685 €
578 309.59 лв.

(2 664 €, 5 210.33 лв./m2)
Цената е без ДДС
История на цената
Публикувана в 18:00 на 13 октомври, 2025 год.
Обявата е посетена 1410 пъти.
Площ:
111 m2
Строителство:
Тухла, Ще бъде въведен в експлоатация 2027 г.

Описание на имота:


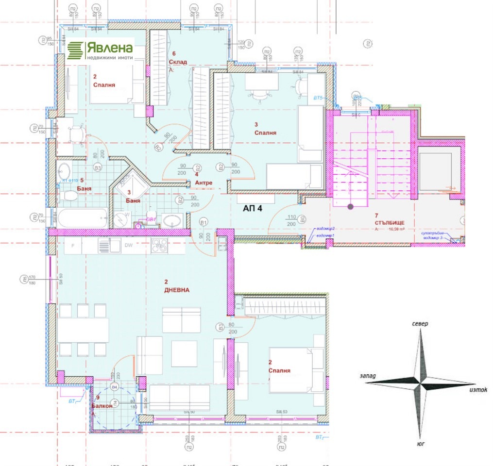
Явлена има удоволствието да Ви представи две новостроящи се сгради, изграждащи се на калкан, с лице на ул. Гео Милев 67 и 69. В непосредствена близост до сградите, се намира парк Гео Милев, бъдеща метростанция, множество спортни и развлекателни съоражения, учебни заведения, ресторанти и магазини. Сградите са с очакван срок за въвеждане в експлоатация есента на 2027 г., в момента са на етап втора плоча. Продаваеми имоти в сградите: Сграда на ул. Гео Милев 69 (дясната на калкана). Апартамент 1 : Етаж: 2, кота+3,50. РЗП: 110,33 кв.м. Цена: 295 685,00 евро. Апартамент 2 : Етаж: 2, кота +3,50м. РЗП: 105,29 кв.м. Цена: 282 178,00 евро. Сграда на ул. Гео Милев 67 (лявата на калкана). Апартамент 4 : Етаж: 3, кота +6,35м. РЗП: 146,72 кв.м. Цена: 363 132,00 евро. Апартамент 5 : Етаж: 3, кота +6,35м. РЗП: 126,46 кв.м. Цена: 326 014,00 евро. При покупка на апартамент се предлагат и обособени гаражи, находящи се на партерно ниво, като единичната цена е 40 000,00 евро. Всички посочени цени са без вкл. ДДС. Примерен план на плащане: 40% при подписване на предварителен договор, 30% при завършен груб строеж акт обр. 14 (с възможност за прехвърляне на собственост/ипотека още на този етап) и 30% след акт обр. 16 въвеждане в експлоатация (и прехвърляне на собственост). За всякаква допълнителна информация и огледи Ралица Николова./YavlenaCOM-162658/
Виж всички обяви в yavlena.bazar.bg или тук
Особености
Тухла
За контакт:
0892540710
Брокер:
Яна Велкова
02476000
Офис: Фронт офис - луксозни имоти
Още оферти от брокера: Продава | Дава под наем | Купува | Наема
Агенция:
ЯВЛЕНА ЦЕНТРАЛЕН ОФИС
028105000
ЯВЛЕНА ЦЕНТРАЛЕН ОФИС logo
Медал за прослужено време
В imot.bg от 2002 г.
yavlena.imot.bg
Адрес:
област София, гр. София, ул. Ген. Йосиф Гурко 76А
http://www.yavlena.com
ИЗПРАТИ ЗАПИТВАНЕ
ИЗПРАТИ ЗАПИТВАНЕТО

Продава 3-СТАЕН
град София, Гео Милев
Обява: 1c176036760387296

295 685 €
578 309.59 лв.
История на цената
(2 664 €, 5 210.33 лв./m2)

Цената е без ДДС
ЗАПАЗИ ОБЯВАТА

Местоположение: град София, Гео Милев

Допълнителни данни за имотите в района и сравнение с други райони: Търсене в АРХИВ 2013 - 2025 г.











Добави/редактирай
вид имот и район
*Средните цени са определени чрез медиана стойност.